Saara Kuure
StraightEdge Drafting Service
2D drafting services for AEC professionals

About Me
My first job was at a civil engineering and survey company beginning on the board and then switching to AutoCAD R12 on a brand new P90 with DOS and XTreeGold! Since then I have continually upgraded my skills and software. Today, it's AutoCAD 2023 and the suite of specialized toolsets which include access to Map 3D, Raster Design, and other verticals. I have a broad scope of experience with a proven ability to deliver high quality work in multiple disciplines with a quick turnaround.
30+
Years of Experience
9,000+
Projects Completed
30+
Satisfied Clients

Some of my recent projects
Drawings
Other Drawings
Civil site plans, road construction sets, land surveys, plat maps, TIA drawings, USACE permits, driveway plans, utility plans, community water systems, CAD conversions, general redlines, and technical details.

Some things I Do
How I Support My Clients' Businesses
RV Park Consulting
Rich Stockwell
Rich and I have worked together for the past couple of decades designing luxury RV resorts around North America.
I research county GIS information, parcel data, and local regulations to create preliminary park concept layouts that fulfill the client's vision.
Rich and his team come up with feasibility studies, business plans, financing, and ship my work off to engineering for finalization.
Beginning the design process by iterating with me, Rich's clients save money. They get a design layout they love and most of the challenges and issues are addressed in the concept phase rather than during civil engineering.
Rubenkonig Planning and Landscape Architecture, PLLC
John Rubenkonig, ASLA
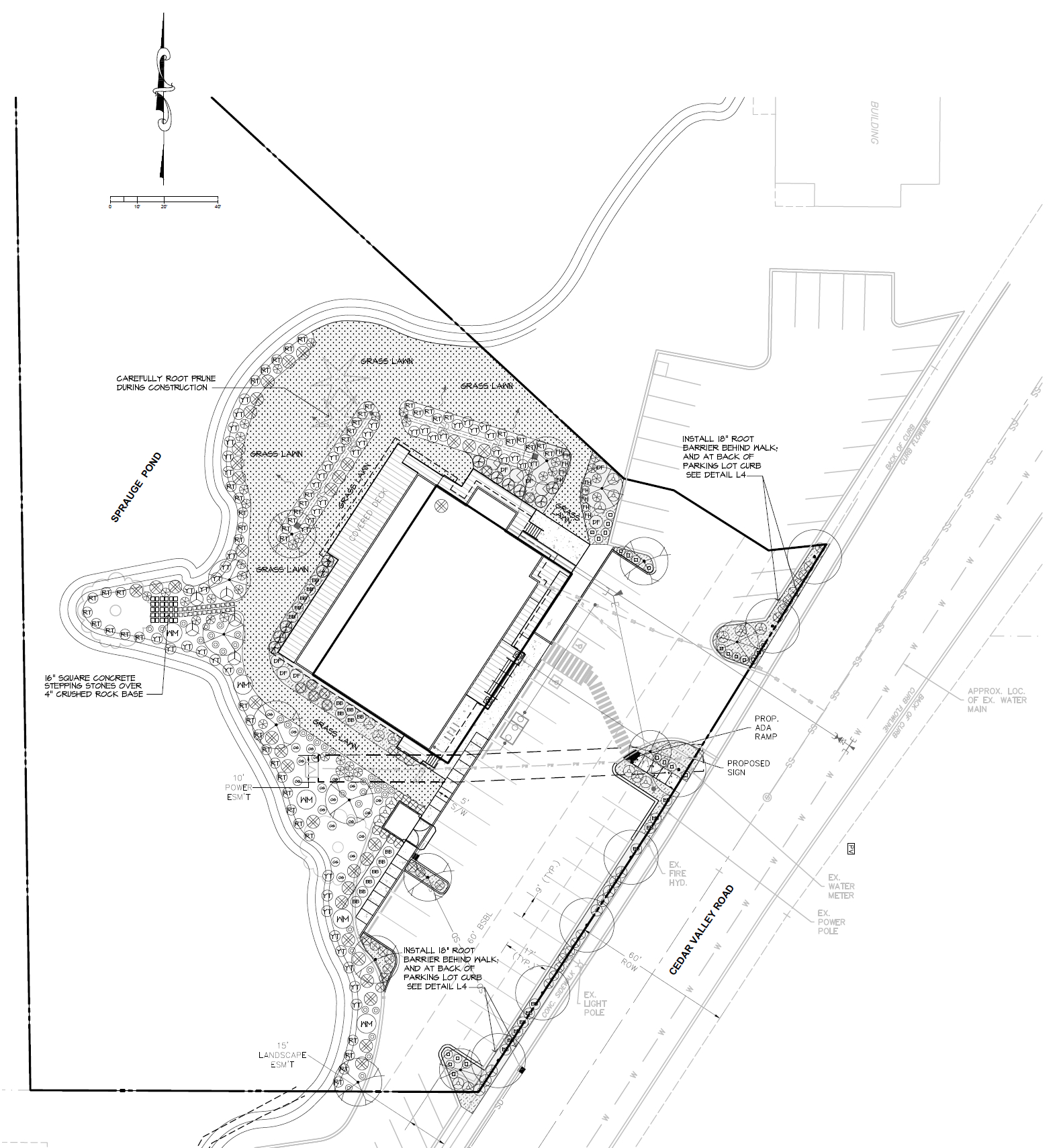
John does a lot of different types of projects and I've been mostly involved with the permit plan sets for landscaping and retaining wall systems.
Often I have to marry survey, architectural, and structural plan sets into a cohesive package for submittal. His tree canopy plans and residential and condominium landscape designs get a final polish from me before being submitted.
John gets to focus on design and project management without getting bogged down in the nuances of AutoCAD. He can also draw a quick sketch by hand and I translate it into its digital form.
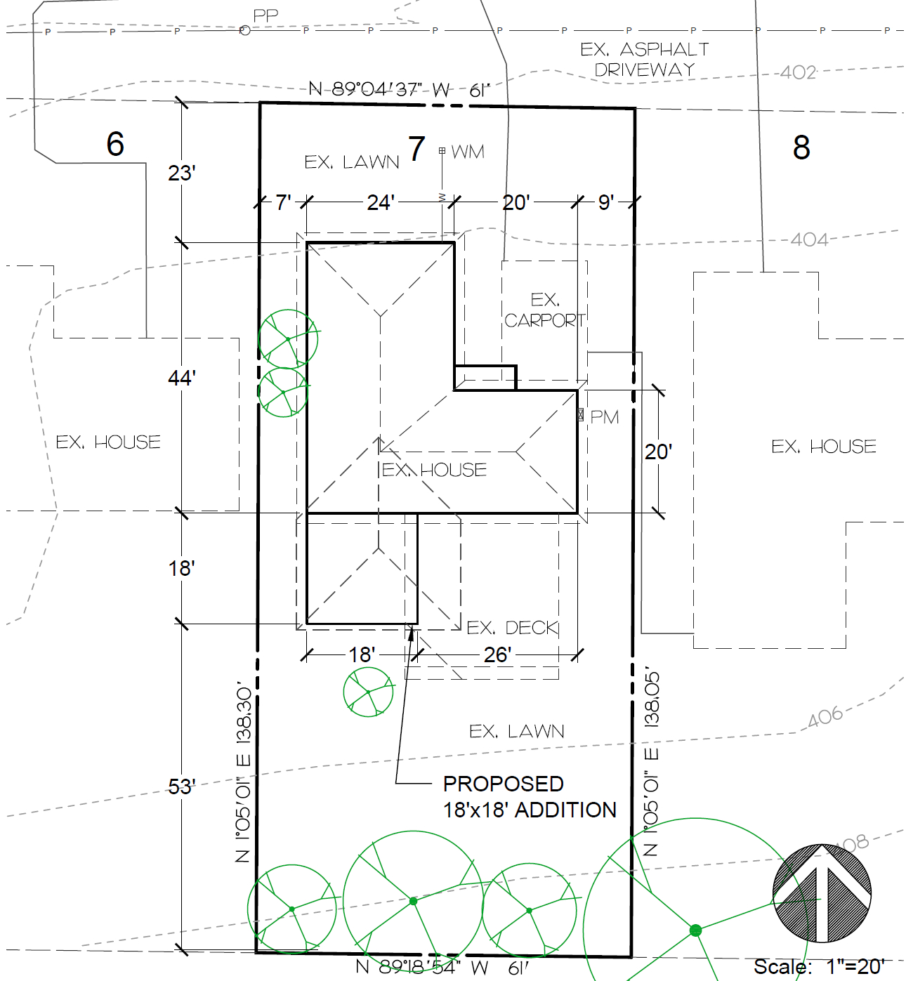
Ramaley Properties, Inc.
Mark Ramaley
The first project that I drew for Mark was an asbuilt plan of the ~5,000 sf historic Klondike Manor in Stanwood prior to restoration.
Over the years, I've sketched up facilities layouts for his lease properties and drawn residential house plans.
Most recently, he restored another home and added a garage in the historic town of Coupeville. His projects are intermittent for me, but they're always interesting and pleasantly challenging in their own way.
Mark knows he can call on me to help with his next fun project. He knows what he wants and how to do it, I help with the permitting hurdles.



